An exciting development opportunity to include the demolition of existing buildings, erection of nine dwellings and alterations to convert existing barn to one dwelling in addition to three stone built cottages.
A mixed development, the plot extending to approximately 1.3 acres with planning permission (2023/90488) for nine new build properties including three town houses, two semi-detached properties, four detached homes. The site also includes a stone built cottage which offers the potential to create two smaller homes and two further stone built cottages.
Cleckheaton is a charming and well-regarded town situated in the heart of West Yorkshire, within the metropolitan borough of Kirklees. Rich in industrial heritage, it is particularly noted for its historic links to the textile and carding industries, lending the town a strong sense of character and identity.
Today, Cleckheaton successfully blends its traditional Yorkshire charm with modern-day conveniences. The town centre offers a vibrant mix of independent shops, cafés, and public houses, while the surrounding area is characterised by rolling hills and attractive countryside, ideal for outdoor pursuits.
A strong sense of community is evident, with popular annual events such as the Cleckheaton Folk Festival drawing visitors from across the region.
Well positioned for commuters, Cleckheaton benefits from excellent transport links, with easy access to the M62 motorway, placing the commercial centres of Leeds, Huddersfield and Wakefield within comfortable reach. Nearby towns including Brighouse and Mirfield provide additional local amenities, with Mirfield also offering a direct rail connection to London.
The site
The site
Plot Number Unit Number Type Bedrooms SqM SqFt
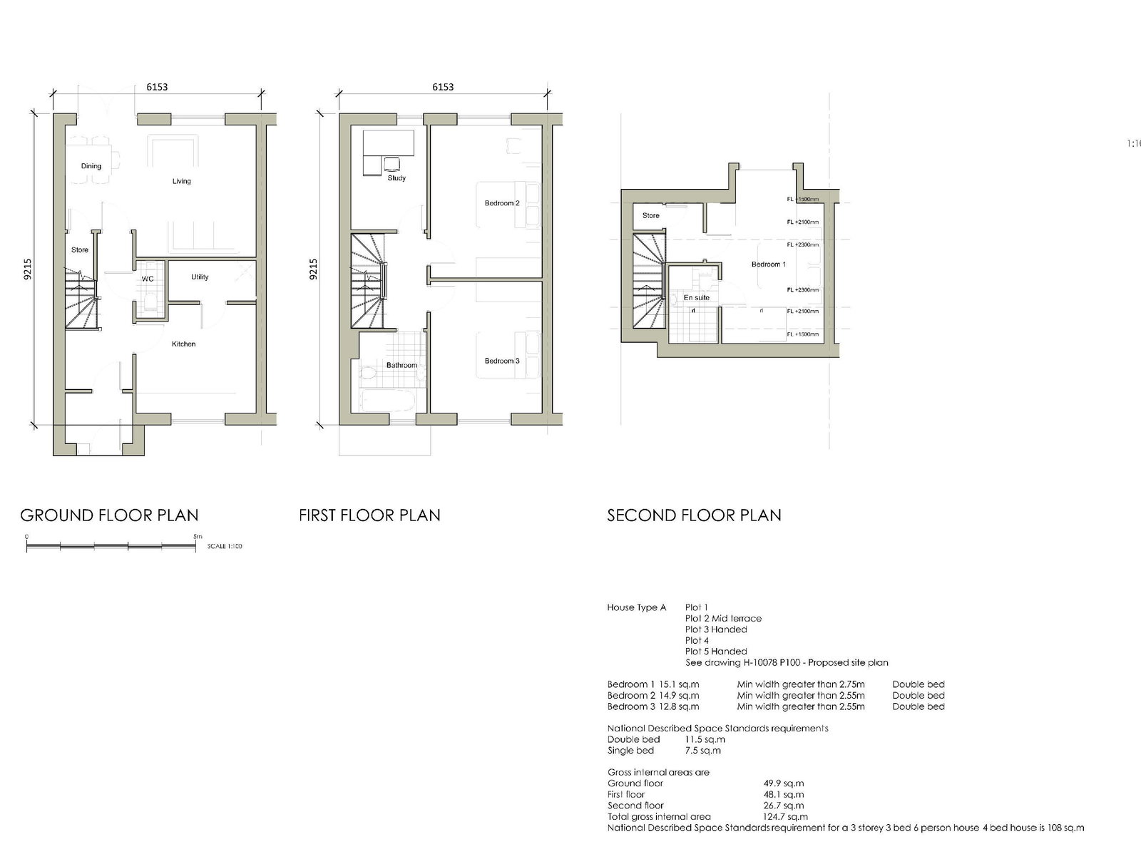
1 1 End Town House 3 124.7 1342
2 2 Mid-Town house 3 124.7 1342
3 3 End Town House 3 124.7 1342
4 4 Semi-Detached 3 124.7 1342
5 5 Semi-Detached 3 124.7 1342
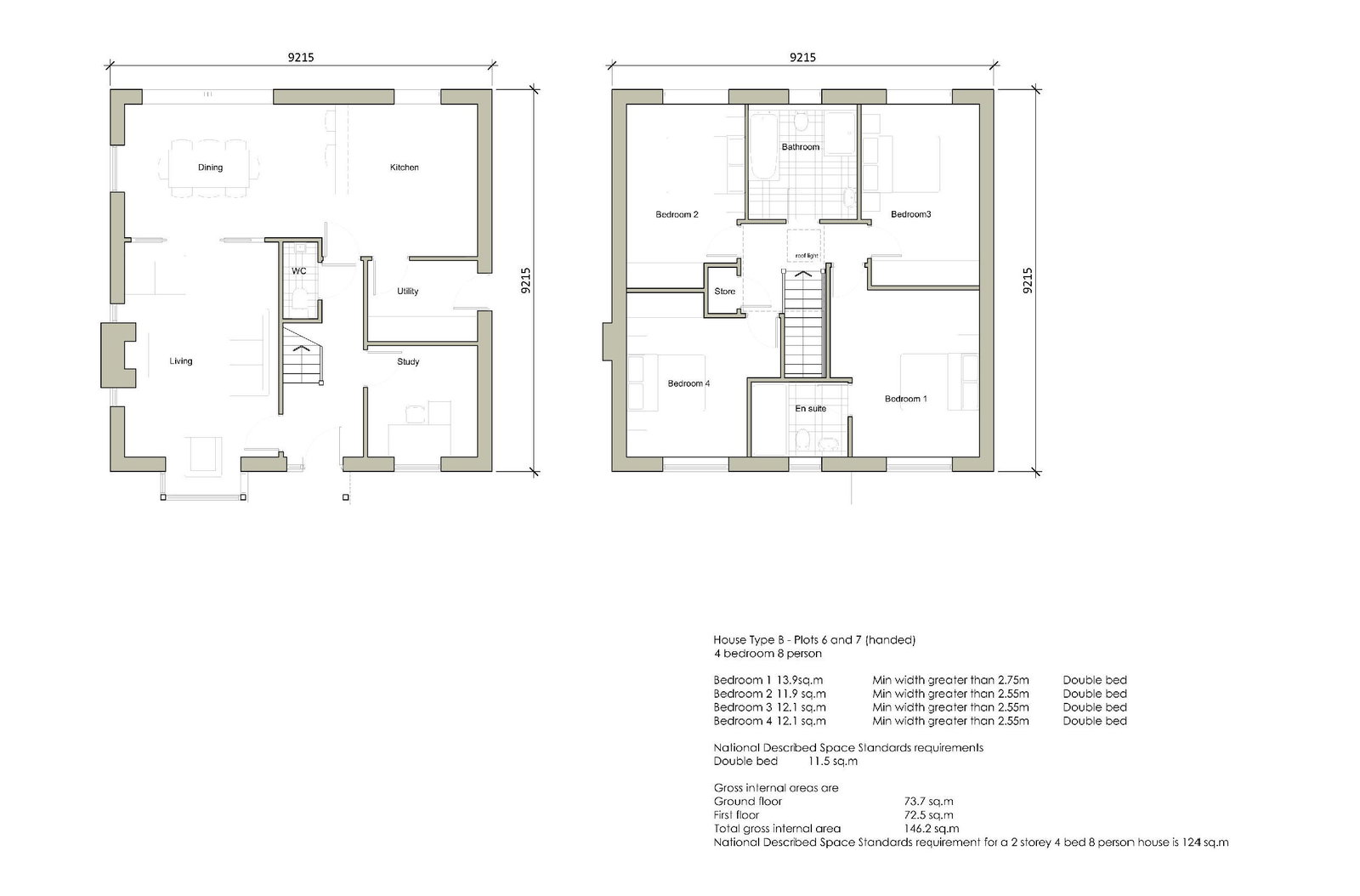
6 6 Detached House 4 146.2 1573
7 7 Detached House 4 146.2 1573
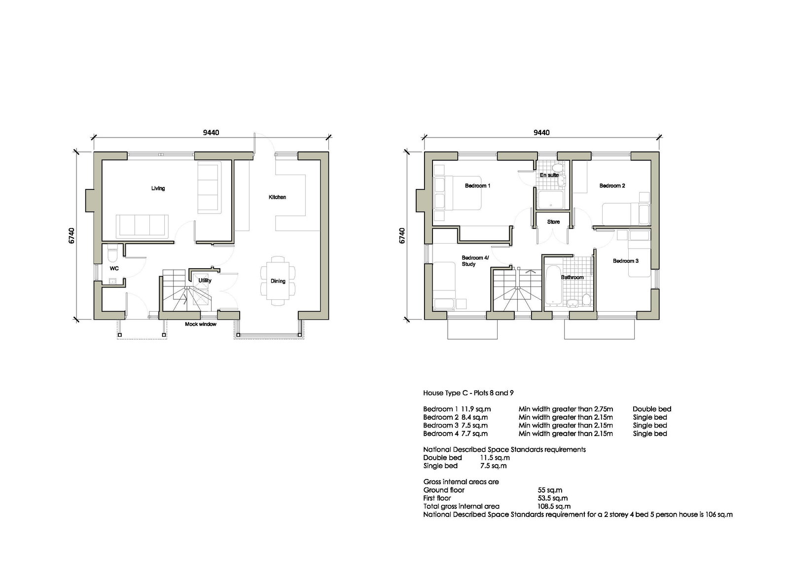
8 8 Detached House 4 108.5 1167
9 9 Detached House 4 108.5 1167
10 10 (1008) Detached Barn 3 132 1420
11 992 Semi Detached 3 61.4 661
12 990 Semi Detached 3 133.4 1436
13 1010 End Cottage 5 221 2379
IMPORTANT INFORMATION 1967 & MISDESCRIPTION ACT 1991 - When instructed to market this property every effort was made by visual inspection and from information supplied by the vendor to provide these details which are for description purposes only. Certain information was not verified, and we advise that the details are checked to your personal satisfaction. In particular, none of the services or fittings and equipment have been tested nor have any boundaries been confirmed with the registered deed plans. Lancasters or any persons in their employment cannot give any representations of warranty whatsoever in relation to this property and we would ask prospective purchasers to bear this in mind when formulating their offer. We advise purchasers to have these areas checked by their own surveyor, solicitor and tradesman. Lancasters accept no responsibility for errors or omissions. These particulars do not form the basis of any contract nor constitute any part of an offer of a contract.
Additional Information
A Freehold development site with mains gas, water, electricity and drainage. Note - On the site plan the small blue section denoted unregistered land. On the development plan the red outline denotes the section relating to the planning application (New Build). The Blue outline denotes existing Cottages.
Property Council Tax Band EPC Rating
1010 C TBC
992 A TBC
990 C TBC
Directions
What3words – such.author.down
Read less