A well-presented three bedroom semi-detached family home, recently modernised throughout, incorporating an open plan living kitchen, offered to the market with no upward chain, enjoying enclosed south facing gardens, off-road parking and fabulous open views to the rear.
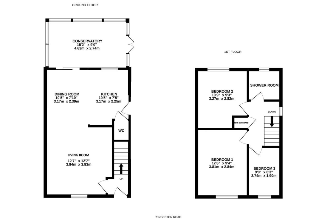
The property offers well-balanced accommodation including a lounge open plan living kitchen and conservatory; to the first floor are three bedrooms and a contemporary bathroom.
Positioned within easy reach of Penistone’s centre and its excellent amenities and schooling, situated on the edge of open countryside, the home provides an enviable lifestyle opportunity with scenic walks on the doorstep, whilst remaining well placed for local services and transport links.
Ground Floor
A double glazed entrance door opens into the reception hallway with staircase rising to the first floor.
The lounge is positioned to the front aspect of the home, offers generous accommodation, has a media wall and leads through to the open plan living kitchen.
The living kitchen sits centrally within the home and provides access to both the lounge and conservatory, offers a sociable open plan living space and presents a recently installed range of modern furniture with work surfaces incorporating a sink unit before extending to a breakfast bar. The room has stylish tiling to the walls and a complement of appliances including an integral oven, hob and extractor hood, a wine fridge, a dishwasher and a fridge freezer. Access to a W.C and a double glazed door to the side.
The conservatory offers additional reception space, enjoying views over the rear garden with doors opening directly outside.
First Floor
The landing provides access to the loft space and all rooms.
The principal bedroom is a well-proportioned, front facing double room with feature wood panelling to the walls. The second bedroom offers double accommodation, is positioned to the rear of the home and commands stunning views over open countryside. The third bedroom offers versatile accommodation, ideal as a bedroom or home office.
The bathroom have been recently updated, featuring a contemporary three-piece suite including a bath with shower over, a vanity basin and W.C., complemented by modern tiling to the walls and floor.
Externally
To the front is a lawned garden with driveway providing off-road parking. To the rear is an enclosed, low-maintenance garden, benefiting from a pleasant open outlook, ideal for outdoor entertaining. A timber, double fronted garden store would make an excellent summer house.
Additional Information
A Freehold property with mains gas, water, electricity and drainage. EPC Rating - D. Council Tax Band - B.
IMPORTANT INFORMATION 1967 & MISDESCRIPTION ACT 1991 - When instructed to market this property every effort was made by visual inspection and from information supplied by the vendor to provide these details which are for description purposes only. Certain information was not verified, and we advise that the details are checked to your personal satisfaction. In particular, none of the services or fittings and equipment have been tested nor have any boundaries been confirmed with the registered deed plans. Lancasters or any persons in their employment cannot give any representations of warranty whatsoever in relation to this property and we would ask prospective purchasers to bear this in mind when formulating their offer. We advise purchasers to have these areas checked by their own surveyor, solicitor and tradesman. Lancasters accept no responsibility for errors or omissions. These particulars do not form the basis of any contract nor constitute any part of an offer of a contract.
Directions
What3words – tasters.importing.bank
Read less