Purpose built office accommodation with an impressive reception area, galleried to a first floor landing, an expansive central office space in addition to 4 separate offices, a kitchen, male / female W.C's and a car park. Flexible terms available.
Read more
Purpose built office accommodation with an impressive reception area, galleried to a first floor landing, an expansive central office space in addition to 4 separate offices, a kitchen, male / female W.C's and a car park. Flexible terms available.
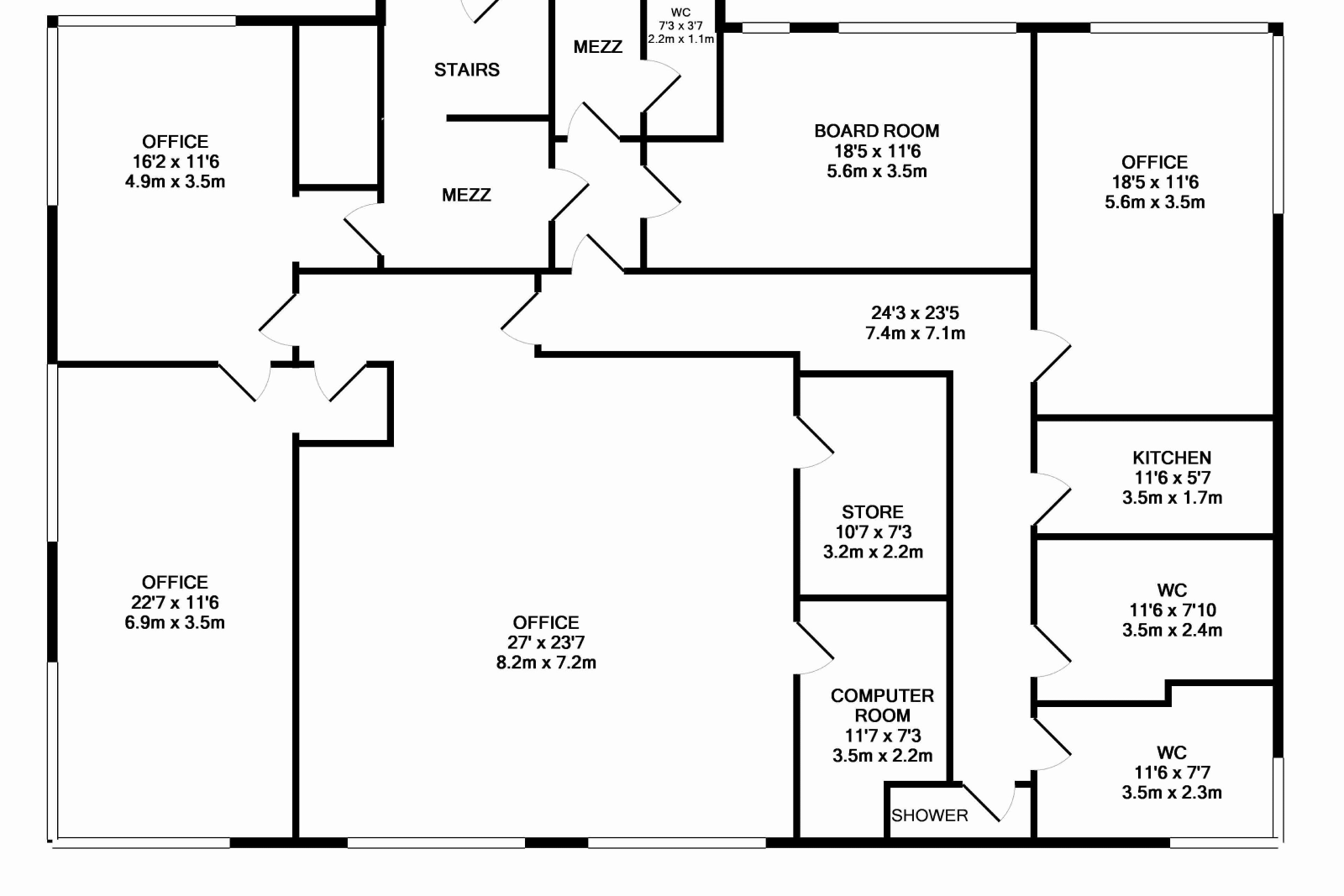
Exceptional first floor office accommodation, Penistone, extending to approximately 2500 sqft of accommodation; The property has an impressive reception area, galleried to a first floor landing, an expansive central office space in addition to three separate offices and a board room. A separate kitchen, male / female W.C's and a car park. Flexible terms available - Located on the outskirts of a popular market town with excellent transport links.
A spacious first floor office lending itself to a variety of uses, enjoying tremendous levels of natural light and enjoying an accessible position on the outskirts of Penistone, only a short drive from Stocksbridge and associated services both market towns have to offer.
A modern building incorporating this first floor fully serviced office with allocated parking and immediate access into Penistone, a bustling market town with a wide variation of shops, bars and restaurants whilst benefiting from both bus and train services and positioned within a 10 minute drive from the M1 motorway network.
Read less
| DOUBLE GLAZING & HEATING |
APPROX. 2500 SQFT OFFICE ACCOMMODATION - IDEAL FOR A VARIETY OF USES |
| CENTRAL TO MAJOR COMMERCIAL CENTRES |
M1 ACCESS / BUS & TRAIN SERVICES |
| KITCHEN & SEPERATE WASH ROOMS |
CLOSE TO TOWN CENTRE |
| FLEXIBLE TERMS / FULLY SERVICED BUILDING |
ALLOCATED PARKING |
| COMMUTABLE LOCATION |
HIGH QUALITY PURPOSE BUILT OFFICE ACCOMMODATION |