A prime town centre property, enjoying an excellent footfall and presance whilst benefitting further from excellent infrastructure links, bus and train services, and vibrant town centre businesses in addition to an S36 population approaching 30,000 people.
A prime town centre property positioned on the entrance to the High Street, enjoying an excellent footfall and presance whilst benefitting further from excellent infrastructure links, bus and train services, and vibrant town centre businesses in addition to an S36 population approaching 30,000 people.
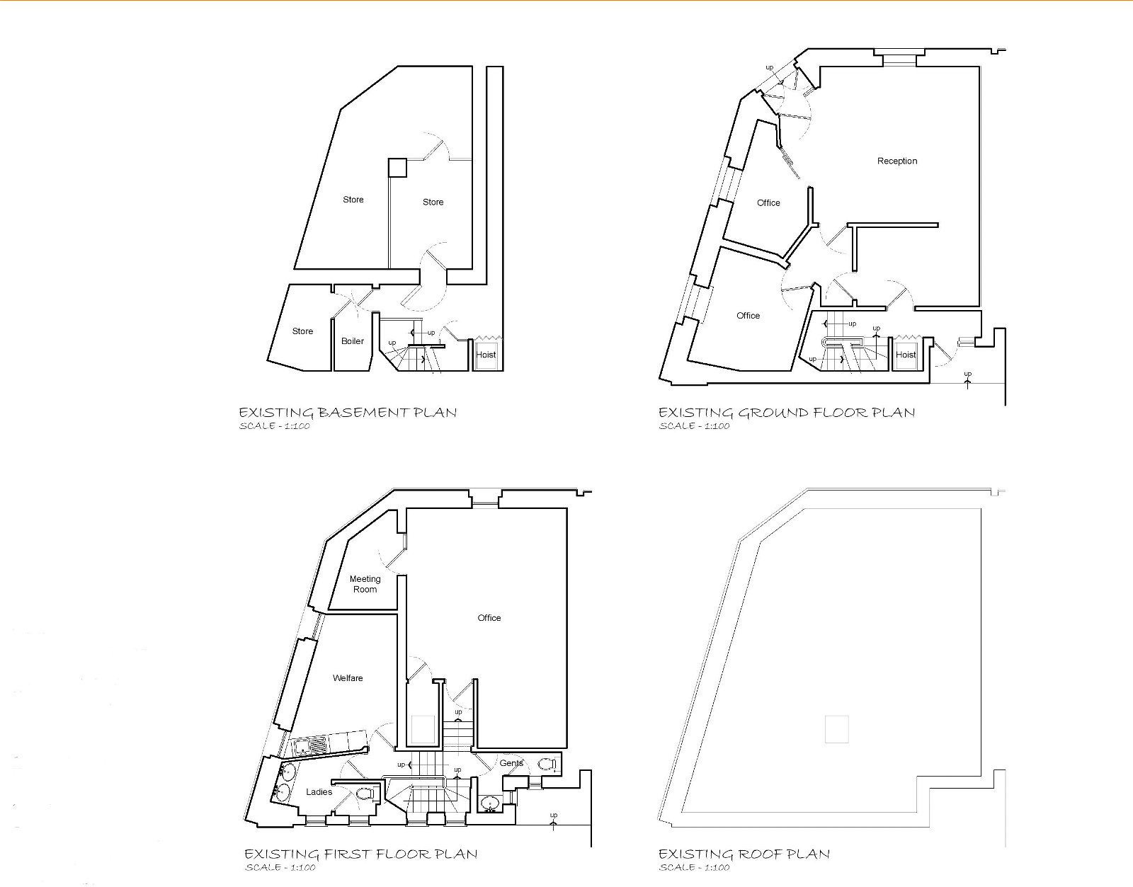
A thee storey commercial / retail property measuring approximately 2000 sqft. The accommodation in need of renovation, the incoming tenant / tenants being given the choice of a refurbished building or a discounted rent in lieu of carring out the modernisation works themselves.
The building is currently open plan on each floor however proposed plans include the following
Ground Floor
Reception Area and Hallway
Office / Shop 2 - Approx 300 sqft
Office / Shop 3 - Approx 300 sqft
Lower Ground Floor
Office / Shop 1 - Approx 500 sqft
W.C and Kitchen Area
First Floor
Office / Shop 4 - Approx 400 sqft
Office / Shop 5 - Approx 300 sqft
Services
Mains gas, water, electric and drainage. We are led to believe the Rateable Valuation to be £9,000.00 PA.
Terms and Additional InformationOffered on a RENTAL BASIS ONLY, exclusive of all utilities and business rates which will be the responsibility of the incoming tenant. Buildings insurance will be obtained by the landlord, the costs of which will be billed back to the tenant.
Situation / Amenities
The town itself, holds a traditional outdoor market on a weekly basis, is surrounded by picturesque villages, all with highly regarded schools and provides an abundance of local shops, ranging from small gift shops and clothes shops to mini supermarkets and Tesco's. In addition, shopping outlets such as Asda and Morrisons are easily accessed, as is Meadowhall being a twenty minute journey by car. Penistone also has it's own train station and bus interchange. The area has a number of highly regarded bars, bistors and restaurants. Fox Valley Retail Park enjoys numerous shops including an award-winning butcher, coffee house, restraunts, supermarkets, and a boutique style department store and generates incoming traffic to S36.
Penistone is situated on the edge of the Pennines surrounded by glorious open countryside whislt being the first location from Manchester and central to Barnsley, Huddersfield, Wakefield, Leeds, Sheffield, Rotherham and Doncaster.
The M1 Motorway is within a 10 minute drive with excellent links to the M18 and M62.
IMPORTANT NOTICE
1. These particulars do not constitute any part of an offer or contract. All statements contained in these particulars are given in good faith but are made without responsibility on the part of Lancasters or the vendors or lessors. Any intending purchaser or lessee must satisfy himself by inspection or otherwise as to the correctness of each of the statements contained in these Particulars.
2. All measurements, areas and distances quoted are approximate only.
3. Information provided in respect of planning and rating matters has, unless stated, been obtained by way of verbal enquiry only. Interested parties are therefore recommended to seek their own independent verification on such matters from the appropriate Local Authority.
4. Location and site plans if provided, are for identification and directional purposes only. The area surrounding the subject property may have changed since the plan was produced.
5. Lancasters have not tested any apparatus, equipment fittings or services and so cannot verify they are in working
Without Prejudice and all fixtures and fitting to be dealt with by separate negotiation.
The building WILL NOT be considered for sale and rental terms are to be negotiated.
Read less